Строительство
ЗАО «ТОЛЬЯТТИСТРОЙЗАКАЗЧИК» является членом Ассоциации «Саморегулируемая организация «СредВолгСтрой», регистрационный номер в реестре 10, дата регистрации 21.08.2008г.
|
|
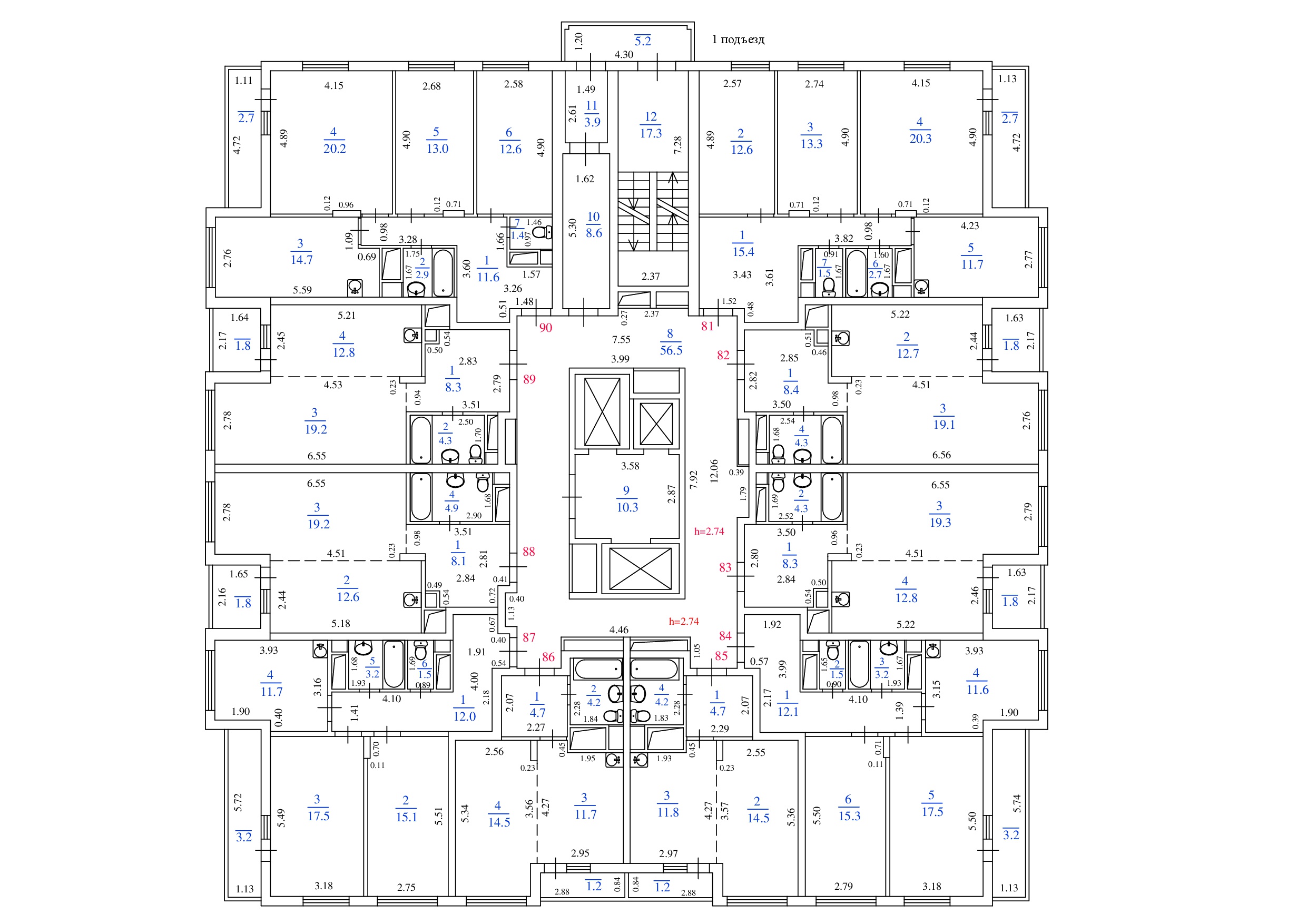
ЖИВИ В ЖК «ОЛИМП» ! БУДЬ НА ВЫСОТЕ ! Жилой Комплекс «ОЛИМП»6 сентября 2022г. получено разрешение на ввод объекта в эксплуатацию № 63-302000-1-2022, выданное Министерством строительства Самарской области, 15 сентября 2022г. дом и квартиры поставлены на кадастровый учет. Почтовый адрес дома г. Тольятти ул. Коммунистическая д. 2Л. 30 ноября 2023г. получено разрешение на ввод объекта в эксплуатацию № 63-09-85-2023, выданное Министерством строительства Самарской области, 30 ноября 2023г. дом и квартиры поставлены на кадастровый учет. Почтовый адрес дома г. Тольятти ул. Коммунистическая д. 2К. ЖК «ОЛИМП» - это современное жилье повышенной комфортности с квартирами улучшенной планировки. Одним из плюсов можно считать расположение: недалеко от центра и в то же время это один из самых красивых и экологически чистых уголков города, с двух сторон комплекс охватывает лесной массив, с окон открывается живописная панорама: зеленый ковер леса вплоть до Волги и на противоположном ее берегу Жигулевские горы. В шаговой доступности – магазины, детсады, школы, прекрасная набережная. Жилые дома представляют собой односекционные двадцатиэтажные здания, включая подвал и верхний технический этаж. В подвалах предусмотрены технические помещения: индивидуальный тепловой пункт, электрощитовая и помещение повысительной насосной станции и станции внутреннего пожаротушения. На техническом этаже, так же как и в подвале, размещены внутренние инженерные коммуникации. ПодробнееНа первом этаже дома по ул. Коммунистическая д. 2Л расположены пять нежилых помещений, помещение охраны, колясочная для временного хранения детских колясок и велосипедов и лифтовой холл. Первый этаж дома по ул. Коммунистическая д. 2К выполнен полностью жилым с размещением колясочной для временного хранения детских колясок и велосипедов, лифтовой холл и помещение охраны. Ориентировочная площадь однокомнатных квартир и квартир-студий – 38-48кв.м, двухкомнатных – 68кв.м., трехкомнатных – 84кв.м. Каждая квартира имеет остеклённую лоджию. Высота помещений от пола до потолков с 2этажа по 15 этаж составляет 2,7м Высота 16, 17, 18 этажа составляет 3м. В каждом жилом доме установлены три лифта различной грузоподъёмностью. Согласно технического задания мусоропровод в здании не предусмотрен. Для хранения отходов на территории застройки предусматривается закрытая площадка с контейнерами. Конструктив жилых домов выполнен из монолитного безригельного каркаса. Наружные стены, межквартирные и межкомнатные перегородки выполнены из керамзито-бетонных блоков. В межквартирных стенах заложен слой шумоизоляции. Квартиры сданы с отделкой «подготовка под чистовую», с установкой приборов учета холодной и горячей воды, электросчетчиков. Входные двери металлические, заполненные шумоизоляционным материалом, полностью выполнена электрическая разводка по квартире и система отопления. Остекление оконных проёмов из ПВХ конструкций, лоджии остеклены с применением алюминиевого профиля. Внешний облик здания имеет современный нейтральный силуэт с элементами симметрии фасада и со строгими повторяющимися элементами. Цветовое решение фасадов спокойное и принято в приятных тёплых тонах. Проектом предусмотрено утепление наружных стен из минераловатного материала с последующим нанесением декоративной фасадной штукатурки и окраской. Выполнено благоустройство территории вокруг домов: площадки для отдыха и спорта, детские игровые зоны, огороженная территория домов ЖК «Олимп». |
Alpen ParkВ продолжение развития направления туристической и спортивно-оздоровительной деятельности Тольяттистройзаказчик ведет строительство гостинично-туристического комплекса. Гостинично-туристический комплекс «Alpen Park» категории 4 звезды, расположен в Центральном районе г. Тольятти на южной стороне ул. Баныкина, на границе деловой части города и природной зоны, что создает ощущение подлинного загородного отдыха. Уникальный для Тольятти комплекс состоит из 8 корпусов. В первый этап строительства, завершенный в июле 2015 г., вошли 6 корпусов: Три одноэтажных коттеджа, в каждом из которых по 3 спальни, где сможет разместиться семейство или небольшая группа гостей; Одно из шале приспособлено для отдыха лиц с ограниченными возможностями и имеет две спальни; Два двухэтажных коттеджа с четырьмя спальнями, где смогут разместиться компании до 10 человек. Второй этап строительства завершился в январе 2017 г. Объект, сданный в эксплуатацию, представляет собой 3-этажный VIP-коттедж для комфортного проживания, в котором имеются большая гостиная, спальни, бассейн, сауна, хамам, инфракрасная кабина. В настоящее время в здании гостиницы располагается ресторан, SPA-центр, включающий в себя тренажерный зал, бассейн, кабинеты с оздоровительными процедурами. Во внутренней территории комплекса располагается патио-дворик, который раскрывается в сторону леса, аквапарка и разворотной площадки. В гостинице имеются 37 номеров и один VIP-номер, целиком занимающий 5 этаж. Для гостей доступна собственная парковка гостиничного комплекса. Площадь объекта составляет 7148,2 м.кв. Гостинично-туристический комплекс «Alpen Park» уже высоко оценен и имеет заслуженную награду конкурса на лучший завершенный строительством объект 2015 года в номинации «Объекты социальной инфраструктуры». |



